Studio u Podgorici
Podgorica




+3 Foto
Lokacija
Studio u Podgorici
- Tipovi nekretnineApartmani
- Zemlja, gradCrna Gora, Podgorica
- Broj sobaStudio
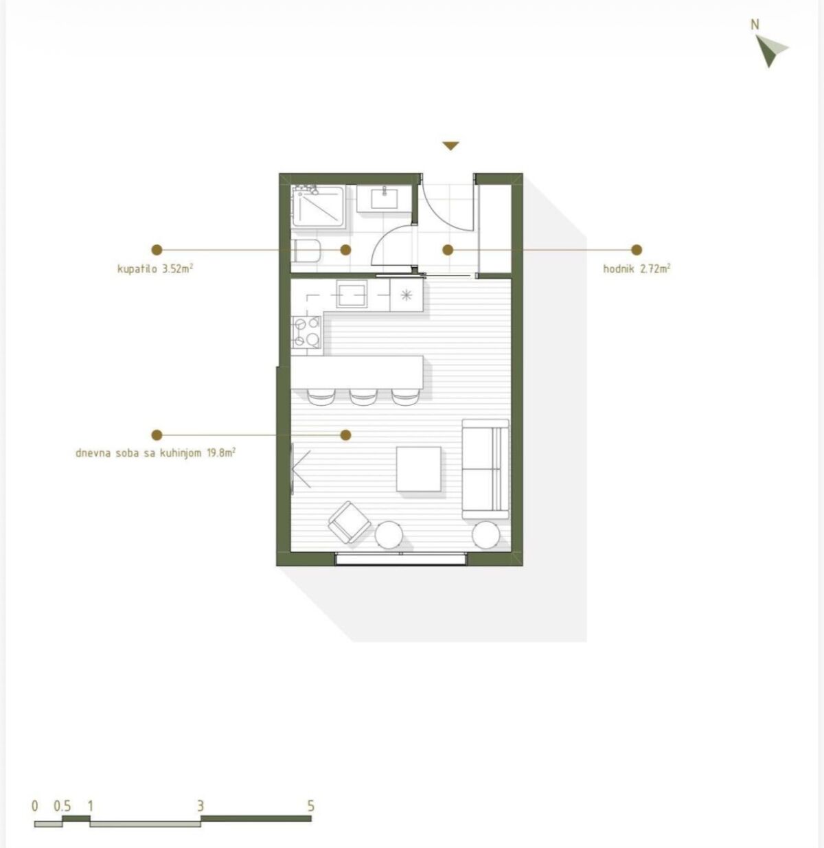
- Površina26 м2
Opis
Na prodaju studio apartmani u izgradnji na atraktivnoj lokaciji u Zabjelu, u neposrednoj blizini Britanske škole. Projekat nudi moderne stambene jedinice karakterisane funkcionalnim rasporedima, kvalitetnom izgradnjom i modernim dizajnom. Škole, vrtići, supermarketi i sve ključne usluge za udoban život su u blizini. Idealna prilika za porodično stanovanje ili investiciju. Planirani završetak radova je jun 2027. godine.
Karakteristike
| Dostupnost nameštaja | Ne |
| Bazen | Ne |
| Terasa | Ne |
| Bašta | Ne |
| Pogled na more | Ne |
| Pogled na planine | Ne |
Ograničenja
| Putnički lift | Ne |
Lokacija
Podgorica
Postavite pitanje o ovom objektu
59.800 €
Period zakupa
- Na mesec · €Komunalije su uključene
- Na dan · €Najmanje od 1 dana
Pre 35 dana
kreiran 02.10.2025
Prodaja
Postavite pitanje o ovom objektu
Ostale objave prodavca
Pre 378 dana
48.000 €
Prodaja
Prodaje se prelijep plac u mjestu Male Pržine, Pričelje, Podgorica.
Pre 377 dana
25.000 €
Prodaja
Prodajem zemljište u Podgorici, Pričelje.
Pre 377 dana
22.000 €
Prodaja
Zemljište u Spužu
Pre 377 dana
120.000 €
Prodaja
Prodaje se dvospratna kuća starije gradnje, u Danilovgradu, blizu Volija.
Slični oglasi
Pokazati broj telefona
Pisati







